Biomass Briquetting and Carbonizing Production Line
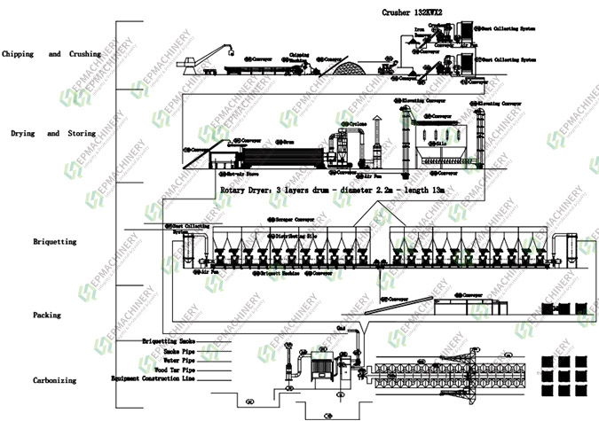
Flowchart of Complete Biomass Briquetting and Carbonizing Production Line

Raw Materials - Wood Chipping Machine – Belt Conveyor (with Iron Remover) – Hammer Mill – Belt Conveyor (with Iron Remover) – Buffering Hopper – Belt Conveyor – Dryer – Belt Conveyor – Distributing Hopper – Briquette Machine – Belt Conveyor – Carbonization Furnace – Packing Machine
1.Crushing.
If raw materials are wood logs, pallet wastes or furniture wastes, etc. the first machine of the plant will be a wood chipping machine, then flow into a hammer mill to make powder less than 5mm which is suitable for briquetting. There are always a lot of nails in pallet wastes and furniture wastes, so it will need an Electric Magnetic Iron Remover between wood chipping machine and hammer mill, to remove and collect the nails from raw materials.
2.Drying.
The appropriate moisture content of raw material for briquetting is 8%-12% roughly, so it will need a dyer. Hot Air Dryer is cheap and suitable for small plant. For big plant with capacity more than 1000kg/h, Rotary Drum Dryer can be matched. Drying process is very important, excessive moisture content in raw materials will result in failure to produce briquettes and may result in explosions due to too much high temperature steam.
3.Briquetting.
The prepared raw materials will flow into Briquette Machines, to make solid briquettes. Before starting production, adjust the heating temperature to about 380 degrees, check the temperature controller, start motor and feed raw materials when the temperature reaches. During the briquette is normally produced, the temperature is usually around 300-350 degrees. In actual production, we should appropriately adjust temperature according to the degree of burnt surface of briquettes.
There are 3 key points to produce briquette well. 1. Control moisture content within 8% - 12%. 2. Appropriate temperature, 300-350 degrees roughly. 3. Correct angle of screw propeller. For different raw materials, the angle of screw propeller are different. We need to find the correct angle based on your specific raw material.
4.Carbonizing.
Biomass briquette is a very popular fuel, we can sell it directly, we can also carbonize Biomass Briquette to Charcoal Briquette. Due to no any additives when making biomass briquette, so the resulting charcoal briquette is 100% natural, no any additives. It is widely used for various applications such as barbecues, grilling and cooking, offering a clean, convenient and sustainable solution for charcoal needs.
For big plant (production capacity more than 10 tons of charcoal briquette per day), we will provide underground kiln. This underground kiln can consist of hundreds of single small kilns, all single small kilns are integrated. It is also equipped with smoke purifying and recycling system, so the smoke will be used as fuel for carbonizing process, and for drying process if there is a lot of smoke produced from biomass briquettes.
Underground Kiln, big production capacity, high efficient, saving fuel and electricity consumption, environmental friendly.
5.Packing.
We will provide different solutions of packing based on your specific demands for biomass briquettes or charcoal briquettes.
- Can you please send me prices and delivery information for your briquette making machines for coal/charcoal.
- How many kilos of briquette do you want to produce? After receiving your reply, so that we can give the right suggestions and recommend you suitable machine.














